Инженерные коммуникации

Цель проектирования инженерных сетей – избежать проблем с водоснабжением, канализацией, отоплением и электричеством. Мы рекомендуем вам дополнить проект разделом с инженерными коммуникациями.
В типовых проектах из нашего каталога его нет, так как большинство клиентов просят разместить оборудование и приборы на своё усмотрение. Поэтому мы готовы разработать документацию для коммуникаций исключительно под ваши требования, пожелания.
Что даёт инженерный раздел
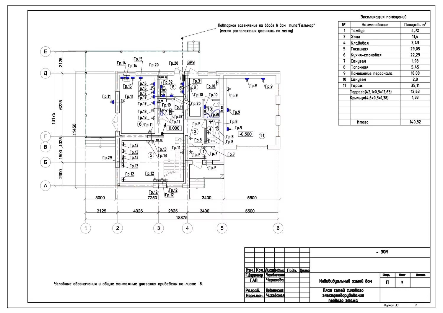
Бесперебойное электроснабжение. Расчёт мощности электросети, с реальным потреблением жильцов – исключит отключения электроэнергии. Розетки и включатели спроектируем по стандартам и в удобных местах.
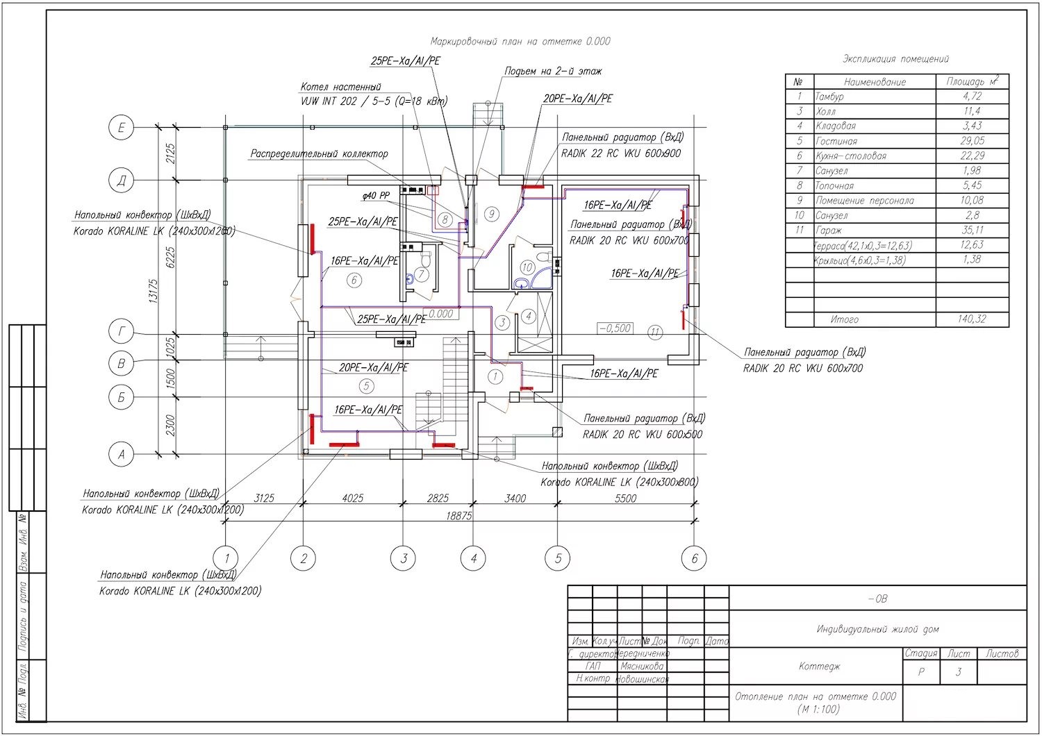
Эффективную систему отопления с оптимальной мощностью котла, оптимальной разводкой. Нагреватели разместим так, что они исключат излишнюю влажность.
Продуманную вентиляционную систему – приток и отвод воздуха для комфортного микроклимата.
Оптимальную разводку водопровода и водоотведения. Обеспечим удобное размещение сантехники.
В итоге у вас будет проект, который исключит перерасход материалов, обеспечит безопасность, эффективную работу систем и дающий максимум бытовых удобств.
Что вы получите
Покупая у нас типовой проект, и заказав услугу – вы получите альбом формата А3. В нём документация для строительства дома вместе с инженерным разделом, где включены:
Спецификация и пояснения – описания оборудования, приборов, материалов;
Графическая часть – подробные схемы прокладки систем:
Электроснабжение,силовые сети
Отопление,вентиляция
Водоснабжение,канализация
Схемы и размещение приборов разрабатываются с учётом планировки дома, на основании пожеланий заказчика.