Паспорт типового проекта

Архитектурный или так называемый, строительный паспорт – это краткое описание проекта в нескольких листах формата А-3, числом от 10 до 15 шт.
Он потребуется для предъявления в органы местного самоуправления либо архитектуры, чтобы получить разрешение на строительство индивидуального жилого дома.
Что входит в состав паспорта для регистрации
Паспорт проекта состоит из текстовых данных, схематичных изображений, пояснений к архитектурному замыслу – где указаны основные размеры: площади, высоты постройки, количество этажей.
Основная часть формируется на основании разработанных чертежей архитектурной части проекта дома:
Пояснительная записка. Общие сведения, краткие характеристики:
- строительных конструкций;
- наружной отделки;
- инженерного оборудования;
- противопожарных мер;
- Описания помещений.
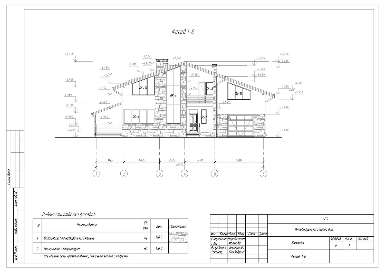
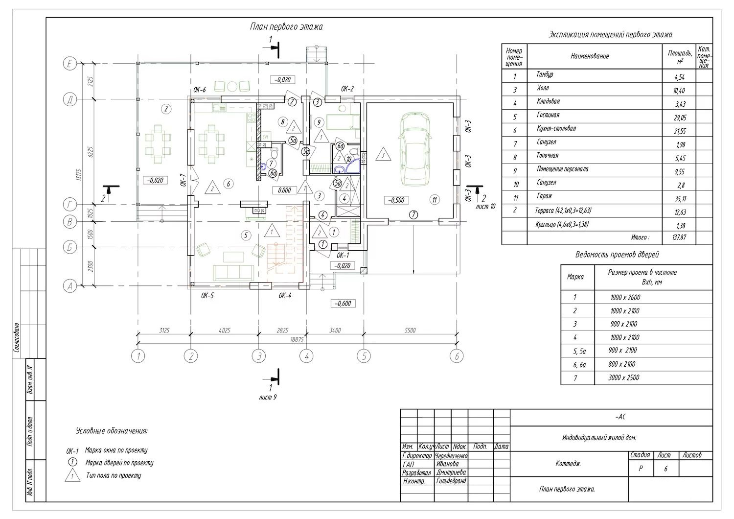
Графическая часть
Цветные фасады
Общие данные
Фасады с отметками высот
Планы этажей
Разрезы по осям
План кровли
Что мы предоставим заказчику
У нас можно купить готовый паспорт. В нем будет всё необходимое для регистрации. Это избавит вас от самостоятельного пересмотра проекта и выборки из него необходимых листов, оформления копий в новую сборку.
Дополнительно мы дадим необязательные, но зачастую решающие преимущества: живую печать разработчика проекта, копию нашей лицензии.
Как заказать паспорт проекта
Заказать паспорт можно одновременно с покупкой проекта дома, добавив услугу при оформлении заказа у нас на сайте, либо сообщив менеджеру по телефону во время подтверждения заказа.
Стоимость архитектурного паспорта проекта – 3 600 руб.