БРУСДВ

ПРОЕКТИРОВАНИЕ И СТРОИТЕЛЬСТВО

Продуманная планировка

Индивидуальный проект позволяет заранее продумать планировку. Это позволит построить именно тот дом, который вы хотите.

Заранее известная стоимость строительства

При проектировании можно предварительно оценить и подогнать стоимость строительства дома именно под ваш бюджет.

Подробнее

Этапы проектирования

Каталог сайтов » Этапы проектирования »

ЭТАПЫ ПРОЕКТИРОВАНИЯ ЗАГОРОДНОГО ДОМА

arrow
01 ТЕХ. ЗАДАНИЕ
02 ЭСКИЗ. ПРОЕКТ
03 АРХИТ. РЕШЕНИЯ
04 КОНСТР. РЕШЕНИЯ
05 ДИЗАЙН-ПРОЕКТ
06 ИНЖЕНЕР. ДОКУМ.
УСЛУГИ КОМПАНИИ БРУСДВ
01 ТЕХНИЧЕСКОЕ ЗАДАНИЕ
УСЛУГИ КОМПАНИИ БРУСДВ
01

ТЕХНИЧЕСКОЕ ЗАДАНИЕ

Этому этапу предшествует затратный по времени поиск фотографий с понравившимися ему коттеджами, элементами архитектуры и декора, вариантами планировок. В дальнейшем, данный материал берется за основу архитектурного образа или планировочной схемы. Если таковых материалов нет, то точкой отсчета может стать один из наших готовых проектов, который подходит под основные требования заказчика.

Подробнее
02 РАЗРАБОТКА ЭСКИЗНОГО ПРОЕКТА
УСЛУГИ КОМПАНИИ БРУСДВ
02

РАЗРАБОТКА ЭСКИЗНОГО ПРОЕКТА

На эскизном проекте архитектор определяет расположение и габариты помещений, количество оконных проемов и дверей, выполняются разрезы здания, производится прорисовка и ориентировочная расстановка мебели для понимания функциональности помещений

Подробнее
03 АРХИТЕКТУРНЫЕ РЕШЕНИЯ
УСЛУГИ КОМПАНИИ БРУСДВ
03

АРХИТЕКТУРНЫЕ РЕШЕНИЯ

После согласования эскиза, начинается рабочее проектирование — формирование рабочей документации раздела архитектурных решений (АР).Производится доработка эскизного проекта.

Подробнее
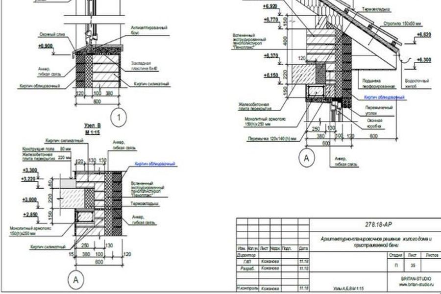
04 КОНСТРУКТИВНЫЕ РЕШЕНИЯ
04

КОНСТРУКТИВНЫЕ РЕШЕНИЯ

На этом этапе, производится расчёт фундамента, перекрытий и стропильной системы с учетом особенностей грунтов, собранных нагрузок и климатических условий.
После утверждения модели архитекторы приступают к разработке рабочей документации (пример раздела конструктивных решений).
В процессе работы архитекторы согласовывают все рабочие вопросы с опытными инженерами нашей компании до выдачи проекта заказчику.

Подробнее
05 ДИЗАЙН-ПРОЕКТ
УСЛУГИ КОМПАНИИ БРУСДВ
05

ДИЗАЙН-ПРОЕКТ

Дизайн-проект разрабатывается для внутренней (интерьерной) части дома. В процессе проектирования осуществляется выбор и привязка сантехнического оборудования, кухонной мебели и техники, выбор и компоновка оборудования котельной, выбор камина и др.

Подробнее
06 ИНЖЕНЕРНАЯ ДОКУМЕНТАЦИЯ
УСЛУГИ КОМПАНИИ БРУСДВ
06

ИНЖЕНЕРНАЯ ДОКУМЕНТАЦИЯ

При проектировании сетей все системы объединяются в единое целое, поэтому уже на стадии эскизного проектирования организуется рабочая встреча с инженером для обсуждения с Заказчиком всех коммуникаций В процессе проектирования загородного дома наши специалисты энергетики также выполняют проект систем вентиляции, отопления загородного дома, водоснабжения и водоотведения, а также проект по электроснабжению.

Подробнее

ЭТАПЫ СТРОИТЕЛЬСТВА ДОМА

1

Составление проектной документации.

2

Подготовка фундамента.

3

Возведение стен.

4

Монтаж кровли.

5

Монтаж окон и дверей.

6

Подключение коммуникаций.

7

Черновая отделка.

8

Чистовой ремонт.

9

Ввод объекта в эксплуатацию.

Подробнее

УСЛУГИ КОМПАНИИ БРУСДВ