tiktok--v1 telegram-app 

    Главная/ Каталог/ Проект П351

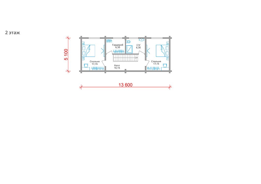
Проект П351

 
delete-sign--v1

 

 

ЧТО ВХОДИТ В ПРОЕКТ ДОМА? Смотрите пример ниже

Состав готового проекта
Любой проект дома или коттеджа из нашего каталога всегда состоит из двух разделов – архитектурный (АР) и конструктивный (КР). Именно эти два раздела регламентированы государственными нормативными документами. Дополнительно, вы можете приобрести типовую инженерную документацию или заказать её в индивидуально порядке. Обращаем ваше внимание на тот факт, что типовые инженерные сети (ИС) состоят только из трех разделов – отопление, водоснабжение и канализация. Помимо ИС мы готовы разработать проектную рабочую документацию по дизайну интерьера, с подбором мебели и материалов, и ландшафтный дизайн, а также провести все монтажные и отделочные работы согласно проектной документации с авторским надзором. Документация предоставляется в печатном виде (формат А3), всегда заверенная синей печатью нашего архитектурного бюро с подписями всех специалистов, принимающих участие в разработке проекта. За дополнительную плату вы можете приобрести электронную версию проекта в формате .pdf. Обращаем ваше внимание! Готовый проект дома требует привязки к конкретным условиям строительства на участке Застройщика. Поэтому в составе готового проекта нет привязки дома к участку. Это дополнительная услуга! Если вам нужна посадка дома, то, сообщите при покупке проекта, об этом нашему менеджеру, заранее подготовив схему участка, которая является частью кадастровой выписки. В состав проекта не входят разделы по установке специализированного оборудования (камины, сауна, кухонное оборудование, джакузи, кондиционеры, оборудование бассейна и пр.). Эти разделы разрабатываются дополнительно организациями-поставщиками до начала или в ходе строительных работ.

 

Дополнительные работы и услуги:
    Адаптация фундамента грунту на участке Застройщика на основании отчета о инженерно-геологических изысканиях, а также рекомендации по подходящему фундаменту в конкретных условиях;
    Привязка дома к участку;
    Изменение материалов, конструктивных технологий и планировочных решений.
Эскизный проект
Эскизный проект - это комплекс проектных работ, выполненных специалистом (архитектором) в соответствии с техническим заданием заказчика и с соблюдением требований нормативных документов, условий строительства. Основу данного проекта составляет авторская идея (форэскиз, архитектурная концепция) планировочных, фасадных и объемных решений проектируемого объекта. Эскизный проект - это документ, являющийся результатом проектирования, который выпускается в виде альбома, содержащего графические и текстовые данные, определяющие основные параметры объекта и его составных частей.
Для чего нужен эскизный проект
Процесс разработки рабочего проекта для строительства загородного дома является строго последовательным. Эскизный проект - это первый этап проектирования. Его можно назвать генетическим кодом вашего будущего дома. Главная задача, которую решает данный проект это создание архитектурной идеи, концепции внешнего и внутреннего образа дома, отвечающего эстетическим, практическим, функциональным требованиям. Эскизный проект содержит в себе ответы на многие вопросы, которые задает себе любой человек перед началом строительства. Как будет выглядеть дом, его посадка на участке, внешний вид (фасады), внутренняя планировка - расположение комнат, их размер и взаимосвязь, удобство эксплуатации, надежность, эстетика, стиль будущего дома. В эскизном проекте задается основа конструктивной схемы здания - какие стены будут несущими, какие просто перегородками, какой тип перекрытий будет использоваться, какая будет крыша, лестница и т.д. На основе грамотно выполненного эскизного проекта можно сразу приступать к созданию рабочего проекта (архитектурных, конструктивных, инженерных решений), проекта, который необходим для осуществления строительства. Не совсем правильно сделанный эскизный проект необходимо исправлять и переделывать. Все недочеты "сырого эскизника" всплывают, как правило, при разработке рабочего проекта. Эскизный проект является также одним из документов, необходимых для получения разрешения на строительство загородного дома.
Что входит в состав эскизного проекта
Ниже приводим список, что включает в себя эскизный проект дома.
  • титульный лист (обложка)
  • содержание (ведомость чертежей проекта)
  • пояснительная записка
  • схема генерального плана М1:500
  • поэтажные планы
  • фасады
  • разрезы
  • план кровли
  • компьютерная 3D визуализация
По согласованию с заказчиком состав базового эскизного проекта загородного дома может быть дополнен, например решениями отделки экстерьера (дизайном фасадов), либо какие то материалы (графические, текстовые) могут быть не включены в проект.

 

Пример расширенного эскизного проекта

 

Архитектурное решение (АР)

 

Инженерные сети (ИС)
Типовые инженерные сети состоят всего из трех разделов – отопление, вода и канализация (ОВК). Не каждый проект дома из нашего каталога содержит готовую инженерную документацию, поэтому о наличии ИС уточняйте у наших менеджеров. Стоимость ИС не входит в стоимость проекта, которая указана на сайте.

 

Вода и канализация

 

Отопление

 

Электроснабжение